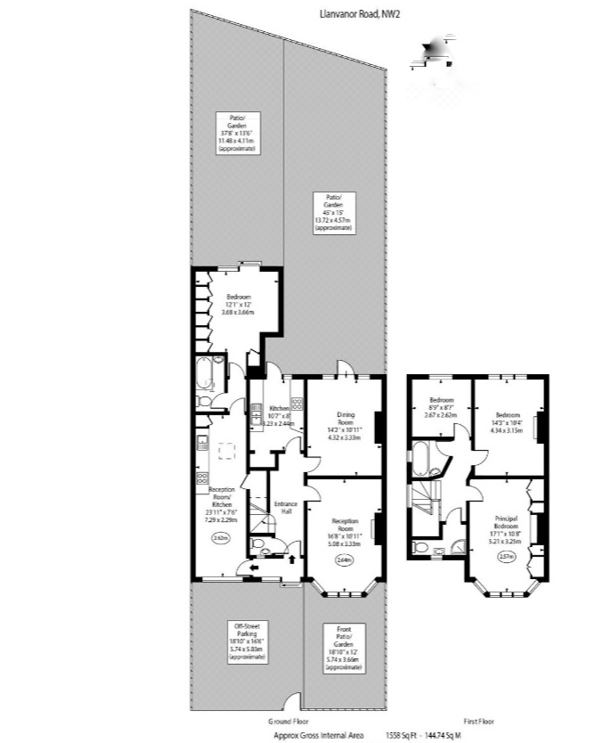
Llanvanor Road, London, NW2 2AP
homeHouse
bed4 Bedroom
bathtub2 Bathroom
£1,345,000
  • 3 BEDROOM SEMI-DETACHED HOUSE
  • 2 RECEPTION ROOMS
  • BATHROOM + WC
  • SELF CONTAINED 1 BEDROOM GARDEN FLAT
  • REAR PATIO GARDENS
  • RENTED AS HMO PRODUCING £75,000 PA
  • MASSIVE POTENTIAL TO EXTEND (STPP)
  • VIEWINGS BY APPOINTMENT ONLY

Summary

The property is in good condition located in one of Childs Hill premier roads close to Childs Hill Park, schools, Hampstead Heath, Golders Green and Brent Cross.
The main house and self-contained garden flat (with own separate entrance) both rented since 2017 as an HMO, currently producing £75,000.00pa. The rear gardens can be combined, and the property has further potential to be extended over the garage, on the side and into the loft (STPP).

Tenure: Freehold

Council tax band: F

Additional Information

For further information on this property please call 020 8458 8044 or e-mail nelhams@dircon.co.uk

EPC Graph

Interested in This Property?

020 8458 8044

nelhams@dircon.co.uk

Request a Viewing

By clicking the below button you agree to our Privacy Policy.

Share this property:

RightmoveOmbudsmanMoney ShieldZooplaEstablished 1975Google Reviews